Производство промышленных водогрейных и паровых котлов

Котлы и котельные установки в Грозном

Котлы и котельные установки это комплекс устройств, при помощи которых в результате сгорания топлива, получается тепловая энергия, служащая для получения пара или горячей воды.

Котлы паровые производительностью 2500 кг в час

Насыщенный пар применяется для выполнения технологических процессов, нагретая вода идет на обеспечение отоплением и горячей водой промышленные, административные, жилые здания и сооружения.

В зависимости от назначения котельные установки бывают отопительные, отопительно-производственные и производственные. По виду теплоносителя они бывают паровые, вырабатывающие пар и водогрейные, нагревающие воду. Котельные установки используют различные виды топлива это твердое, жидкое и газообразное топливо.

Отопительные котлы и котельные установки используются для отопления, горячего водоснабжения, вентиляции жилых, общественных и административных зданий. В таких установках используются водогрейные котлы отопления, которые нагревают воду до 115 °C.

Отопительно-производственные котельные установки вырабатывают пар и нагревают воду для технологических потребностей производства, отопления, вентиляции и горячего водоснабжения.

Производственные котлы и котельные установки вырабатывают пар для технологических нужд на предприятиях. В таких установках используются паровые жаротрубные котлы высокого и низкого давления.

Котельная установка состоит из основного и вспомогательного оборудования.

Основные элементы котельной установки это котел, топочное устройство, питательные и тягодутьевые устройства. К вспомогательному оборудованию относятся система топливоподачи и золошлакоудаления, устройства для очистки уходящих газов и питательной воды, контрольно-измерительные приборы и котельная автоматика.

Водогрейные котлы

Водогрейные котлы для отопления исполняются в различных вариантах, с разной степенью автоматизации, на любых видах топлива.

Наш завод производит водогрейные водотрубные котлы с температурой нагрева воды 95 - 115 °С и рабочим давлением 0.3 - 0.6 МПа, мощностью от 0.15 до 4.0 МВт. Установка водонагревательных котлов производится в котельных производственных помещений и зданий, складов, гаражей, цехов, ангаров, автосервисов, школ, садиков, клубов, магазинов, больниц, санаториев, теплиц, птицефабрик, СТО.

Степень автоматизации Вид топки Вид топлива
Ручная Колосниковая Уголь
ОУР Уголь, дрова
Подовая Древесные отходы - дрова, доски, поленья, ДСП, опилки, щепа, кора, стружка и др.
Полумеханическая РПК Уголь
ЗП РПК Уголь
Механическая ТШПМ Уголь
ТЛПХ Уголь
Автоматическая Ретортная Уголь, пеллеты
Вихревая Опилки, щепа, стружка, кора (в ручном режиме - дрова и крупногабаритные отходы)
Наддувная горелка Газ, дизель, мазут, отработка

Устройство водогрейных котлов
Котел марки КВр водогрейный
 

Котельный блок нагревательных котлов представляет собой гладкотрубную горизонтальную стальную конструкцию, состоящую из трубной системы, опорной рамы и каркаса с теплоизоляционными материалами, обшитого листовой сталью. Топочная часть выполняется из газоплотных водотрубных экранов, а конвективная состоит из сварных конвективных панелей и параллельно установленных в шахматном порядке труб. На фронте котлоагрегата устанавливается топочная дверка, либо крепится горелка.

Конвективная поверхность нагрева состоит из труб, расположенных в шахматном порядке. Это обеспечивает более интенсивное и полное омывание труб горячими газами. Газы в конвективной части проходят два хода и выходят через газоход в верхней части задней стенки агрегата.

Промышленный нагревательный котел имеет развитую конвективную часть, которая снижает температуру уходящих газов из котла до 200 -180 °С. Значительное снижение температуры уходящих газов исключает потерю теплоты, тем самым обеспечивая значительную экономию топлива. Трубная система имеет множество перегородок, для увеличения скорости воды в котле и исключения застойных зон и локального перегрева поверхностей нагрева.

Ручные котлы промышленные производятся в трех вариантах - колосниковые, подовые и с топкой ОУР. Загрузка топлива и выгрузка золы и шлака призводятся вручную.

Котлы на угле с колосниковой топкой тепловые напольные выпускаются под маркой КВр, мощностью от 0.15 до 2.5 МВт. Данный модельный ряд включает вертикальные котлы до 0.3 МВт, которые работают на самотяге и горизонтальные, для работы которых требуется дымосос. Уголь укладывается на чугунные колосники и распределяется по решетке слоем не более 200 мм. Под колосники дутьевым вентилятором подается воздух на горение. Через щелевидные отверстия на колосниках, зола проваливается в зольный бункер, находящийся ниже. Важно, чтобы во время горения топлива работа вентиляторов не прекращалась, т.к это может привести к деформации колосников. Мощность агрегатов регулируется количеством забрасываемого топлива и подаваемого воздуха.

Котел на угле и дровах

Котлы на дровах стационарные водотрубные изготавливаются как с колосниковой топкой, так и с топкой ОУР, мощностью от 0.15 до 1.5 МВт. Топка ОУР изготавливается с водоохлаждаемой решеткой и состоит из труб, по которым проходит вода и межтрубных полос металла с небольшими отверстиями. Воздух на горение подается под колосники. За счет отверстий, расположенных по всей решетке, происходит равномерная подача воздуха в топливный слой. Небольшой диаметр отверстий не дает провалиться недогоревшему топливу. Котлы с топкой ОУР прекрасно подходят для сжигания мелкофракционного, малозольного топлива, как дрова, бурый уголь, древесные брикеты.

Котлы на угле и дровах комбинированные, как и дровяные изготавливаются с двумя видами топок - колосниковой и ОУР, мощностью от 0.15 до 2.0 МВт. Данная модель актуальна для котельных, использующих оба вида топлива. Нужно учесть, что основным видом топлива будет являться уголь, а дрова, будут использоваться, как резервное топливо. Т.е заявленная мощность будет достигаться на основном виде топлива - угле. Дров нужно будет закидывать больше, поскольку это низкокалорийное топливо с меньшим временем горения. Трубный котел, для удобства загрузки, изготавливается с двумя топочными дверками. По вашему желанию, размер дверей может быть изменен, либо мы можем сделать одну большую дверку.

Котел твердотопливный на древесных отходах

Котлы с естественной тягой мощностью от 0.15 до 2.0 МВт работают без дымососа. Работа водогрейного котла без дымососа обеспечивает значительную экономию на электроэнергии. Котел имеет уникальную запатентованную конструкцию, которая обеспечивает легкий выход на номинальную мощность даже при плюсовой температуре воздуха, исключает задымление в котельной и конденсат поверхностей нагрева. Развитые поверхности нагрева обеспечивают максимально высокий КПД 80%.

Котлы на древесных отходах производственные изготавливаются с большой подовой топкой мощностью от 0.15 до 1.5 МВт. Древесные котлы наиболее актуальны для предприятий деревообработки и лесопиления, мебельного производства, пилорам, лесхозов и других, непосредственно связанных с обработкой древесины. Котлы древесного топлива экономичны в плане отопления, поскольку топиться вы можете отходами своего предприятия. Котлы предназначены для сжигания сырых и влажных дров, бревен, поленьев, горбыля, щепы, коры, стружки, опилок, досок, поддонов, ДСП. Габаритная топка позволяет загружать при одной загрузке большое количество топлива, в том числе крупногабаритного. Топливо укладывается на под топки. При подовом горении все топливо полностью прогорает.

Полумеханические котлы для котельной изготавливаются с топкой РПК и ЗП РПК. Процесс работы в этих котлах частично механизирован, что облегчает работу кочегару.

Котлы с топкой РПК с опрокидывающимися колосниками производятся мощностью от 0.4 до 4.0 МВт. Топливо укладывается вручную на поворотные колосники. Сброс золы производится путем поворота колосника, через образовавшийся проем, в канал шлакоудаления. Поворотные колосники устанавливаются с правым, левым, либо центральным сбросом, в зависимости от канала шлакоудаления.

Котлы с топкой ЗП РПК с забрасывателем производятся мощностью от 1.1 до 4.0 МВт. Отопительные котлы производятся с механическим забрасывателем ЗП, при помощи которого топливо поступает в топку. Транспортером топливоподачи уголь поступает в забрасыватель ЗП, откуда поступает на колосниковую решетку. Нагрузка топки регулируется путем изменения подачи топлива забрасывателем. Горение топлива происходит на колосниках, под которые вентилятором поддува подается воздух. Шуровка слоя выполняется вручную. Сброс шлака происходит через проем, образующийся на топке при повороте опрокидывающихся колосников.

Механические котлы российского производства изготавливаются с топкой ТШПМ и ТЛПХ. Работа водотрубных котлов - подача топлива и его сброс, полностью механизирована.

Котел с топкой ТШПМ механический

Котлы с топкой ТШПМ с шурующей планкой мощностью от 0.8 до 3.0 МВт производят полностью механизированную работу. Механический котел предназначен для работы на каменном и буром угле повышенной влажности. Благодаря зональному делению топки топливо изначально, подсушивается и прогревается, прогорает, затем остужается. Загрузка топлива производится транспортером в бункер топки. При помощи шурующей планки топливо поступает на водоохлаждаемую колосниковую решетку. За счет движения шурующей планки топливо продвигается вперед и сбрасывается в канал золоудаления. 

Котлы с топкой ТЛПХ российские стальные механизированные мощностью от 1.5 до 4.0 МВт для работы на угле. Уголь поступает в бункер топки транспортером, затем самотеком распределяется по движущейся колосниковой решетке. Количество подаваемого топлива регулируется изменением скорости движения колосникового полотна. Необходимо организовать непрерывную подачу воздуха под колосниковую решетку при помощи вентилятора и воздушных шиберов для избежания спекания слоя топлива и деформации колосников. Удаление шлака производится за счет движения колосникового полотна в канал шлакозолоудаления.

Автоматические котлы предназначены для минимального обслуживания, все рабочие процессы автоматизированы - подача, контроль горения, температуры и давления, безопасность.

Котел на угле автоматический

Автоматические котлы на угле и пеллетах твердотопливные мощностью от 0.15 до 0.6 МВт. Ретортная горелка устанавливается в центр отопительного котла. Топливо располагается на колосниковой решетке ретортной горелки. Выгоревший и охлажденный шлак постепенно вытесняется и сбрасывается с краев колосниковой решетки новой поступающей из центра колосниковой решетки порцией топлива. Сброшенный с краев колосников шлак накапливается в зольном коробе. Из зольного короба шлак удаляется при помощи шнека, соединяющий зольный короб и внешний зольный ящик.

Котлы на опилках с вихревой топкой работают с очень влажным топливом, до 60 %. Вихревые котлы подходят для сжигания сырых древесных отходов, таких как опилки, щепа, кора, стружка. Пояс зажигания, выполненный в топке, постоянно поддерживает высокую температуру, за счет чего происходит интенсивная сушка топлива, быстрое зажигание и стабильное горение. К тому же стальной котел с вихревой топкой экономичен в использовании, особенно для деревоперерабатывающих предприятий, т.к отапливаться вы можете непотребными отходами производства. Конструкция топки обеспечивает полное сгорание топлива. Для сжигания крупногабаритных отходов, котел с вихревой топкой переводится в ручной режим.

Автоматический котел на щепе

Котлы на щепе с автоматической подачей топлива, работают на щепе, опилках, коре, стружке, в ручном режиме возможно сжигание дров, досок, поддонов и других габаритных отходов вашего производства. Топливо поступает в бункер и при помощи плунжерного питателя попадает в вихревую топку стационарного котла. Топливо попадает на огнеупорную плиту, на которой происходит его сушка и подогрев. Предварительная подсушка позволяет работать с сырым топливом, без температурных колебаний. Сжигание дров происходит на водоохлаждаемой решетке с переводом водяного котла в полностью ручной режим работы, либо в качестве закладки дополнительного топлива в процессе основной работы вихревой топки.

Котлы КВа автономные горизонтальные работают на газе, дизеле, мазуте, отработанном масле с длинофакельными блочными отечественными и импортными горелками таких производителей, как EMMA, ILKA, CIB UNIGAS, BALTUR, ECOSTAR, FBR S.R.L. и другими. Наш завод также производит модели котлов для работы на российских горелках БИГ, ГМГ, РМГ, ГГ, РГМГ. Горелка крепится во фронтовой части топочной камеры. Отверстие во фронтальной плите изготавливается под конкретную модель горелки. В заднем экране топки установлен взрывной клапан, предохраняющий конструкцию котлоагрегата от разрушения при возникновении избыточного давления в топке. Регулирование заданных температурных режимов производится в автоматическом режиме, за счет чего обеспечивается эффективное сжигание топлива.

Паровые котлы

Паровые жаротрубные котлы предназначены для производства насыщенного пара температурой 115 - 170 °С для выполнения технологических процессов на промышленных предприятиях, в пищевой промышленности, в сельскохозяйственном производстве, деревообрабатывающей промышленности, в медицине, в легкой и целлюлозно-бумажной промышленности, в топливном хозяйстве, в строительстве и производстве бетона и бетонных изделий.

Наш завод изготовитель производит паровые жаротрубные и барабанные котлы производительностью до 2500 кг пара в час.

Конструкция Производительность Топливо Температура, до Давление, до
Жаротрубный
  • 200 кг/ч
  • 300 кг/ч
  • 500 кг/ч
  • 700 кг/ч
  • 1000 кг/ч
  • 1500 кг/ч
  • 1600 кг/ч
  • 2000 кг/ч
  • 2500 кг/ч
  • каменный и бурый уголь
  • дрова и крупногабаритные отходы
  • природный и сжиженный газ
  • легкое дизельное топливо
  • мазут и отработанные масла
  • пеллеты
  • 115 °С
  • 130 °С
  • 170 °С
0.07 МПа (0.7 кгс/см2)
0.17 МПа (1.7 кгс/см2)
0.9 МПа (9 кгс/см2)
Барабанный
  • 1000 кг/ч
опилки, пеллеты, щепа, кора, стружка, лузга (в ручном режиме - дрова, доски, поленья, ДСП и др.)
  • 170 °С
0.9 МПа (9 кгс/см2)

Устройство паровых котлов

Паровые жаротрубные котлы представляют собой горизонтальную конструкцию и состоят из двух стальных цилиндров разного диаметра вставленные один в другой и соединенные между собой фланцами и паросборником. В принцип работы парового котла положен теплообмен между дымовыми газами и водой. Пар, собираясь в верхней части котла, попадает в паросборник и затем по паропроводам подается потребителю. Для управления и защиты парового цилиндрического котла и вспомогательного оборудования предусмотрены автоматизация котла пульт управления и контрольно-измерительные приборы, которые сигнализируют об отклонениях в работе оборудования.

Котел паровой на угле

Паровые угольные котлы. На фронтовой плите имеется дверка для загрузки топлива. В нижней части топочной камеры укладываются колосники, на которых происходит горение топлива. К плите крепятся воздуховод и вентилятор для подачи воздуха в топку. Продукты сгорания выводятся чрез дымовую трубу. В основании дымовой трубы установлен предохранительный клапан.

Паровые котлы на дровах производятся с подовой топкой. Габаритная подовая топка позволяет укладывать большое количество топлива при одной закладке. Топливо укладывается на под топки. Горение топлива происходит от верхних слоев к нижним. Образующиеся в результате сгорания угли разогревают нижние слои топлива и стимулируют процесс горения. При подовом горении все угли остаются в топке и полностью догорают, отдавая тепло.

Газовые и жидкотопливные паровые котлы. К фронтовой плите котельного блока крепится горелка для подачи топлива в топку котла через амбразуру. Газовый и жидкотопливный паровой котел может работать с длинофакельными горелками различных производителей – отечественными EMMA и импортными UNIGAS, BALTUR, ECOSTAR, FBR S.R.L., в качестве топлива может применяться природный газ низкого и среднего давления, а также сжиженный газ и дизельное топливо. Мазутные котлы комплектуются горелкой ILKA.


Паровой котел на твердом топливе опилках промышленный

Паровые котлы на древесных отходах. Котел паровой работает на щепе, стружке, опилках и древесных отходах высокой влажности в полностью автоматическом режиме. Автоматика осуществляет автоматический розжиг, запуск, работу и остановку котла, подачу топлива с контролем производительности по заданной температуре теплоносителя. Подача воздуха осуществляется в зависимости от объема поданного древесного топлива. В теплогенераторе предусмотрена автоматическая система пожаротушения в случае воспламенения топлива в топливопроводе.

Вихревой режим горения исключает механический недожег, топливо полностью сгорает в топке. Конструкция топки позволяет работать с влажным топливом до 60%. Конструкция бункера под древесное топливо и узел соединения со шнековым питателем позволяет полностью опорожнять бункер за счет питателя топлива. В конструкции шнекового питателя дополнительно предусмотрено воздушное охлаждение выходного узла, что препятствует возможности воспламенения топлива в питателе и увеличивает надежность работы.

Вспомогательное оборудование
Транспортер ТС 2-30 для котлов

Транспортеры топивоподачи шлакозолоудаления применяется в механизированных котельных с паровыми и водогрейными котлами для подачи топлива в бункеры топок и удаления золы и шлака. Зола и шлак скребковым транспортером перемещается при помощи движущихся скребков по неподвижному желобу в бункер золы и шлака или отвал. Топливоподача скребковая состоит из привода, натяжной, приводной, прямолинейных секций, поворотных секций, скребковой цепи. Путем изменения количества прямолинейных секций и применением поворотных секций транспортера топливоподачи имеется возможность создавать различную траекторию с углом перегиба 30 °.

Бункер топлива применяется в котельных с механизированной подачей топлива в топку котла. Бункер топлива, объем и его конструкция рассчитывается в зависимости от производительности котлов и схемы котельной.

Золоуловители и циклоны устанавливаются в твердотопливных котельных для отчистки дымовых газов от золы.  Это уменьшает загрязнение атмосферного воздуха, а также повышает надежность эксплуатации дымососов, так как снижается их золовой износ.

Автоматика используется с целью управления котлом, вспомогательным оборудованием и котельной в целом. Автоматическое управление включает дистанционный контроль следующих узлов: паровые и водогрейные котельные установки, насосная группа, топливоподача, шлакоудаление, вентиляционные установки.

Производство золоуловителей ЗУ 0.8

Горелки российского и импортного производства применяются с промышленными газовыми и жидкотопливными водогрейными и паровыми котлами. Горелки подают топливо в топочную камеру, где происходит его сжигание и нагрев теплоносителя. Блочная горелка осуществляет сжигание топлива, изменяет режим горения, обеспечивает поддержание в контуре котла необходимую температуру воды. Диапазон температуры воды в контуре агрегата задается на пульте управления. При достижении крайних значений автоматически осуществляется включение и выключение горелки.

Насосы предназначены для перекачивания питьевой, чистой воды, воды производственно-технического назначения, для заполнения котла водой, для пополнения объема теплоносителя в контуре, для обеспечения постоянной циркуляции воды в тепловой сети.

Дымососы и вентиляторы обеспечивают подачу воздуха в топку и движение продуктов сгорания - газов по газоходам котла, а также удаление их в атмосферу.

Дымовые трубы предназначены для вывода продуктов сгорания от котлов и модульных котельных, работающих на всех видах топлива. Вместе с ними через трубу удаляются дым, сажа, пепел и копоть. Ещё одним предназначением дымовых труб является обеспечение нормальной тяги в котле.

Водоподготовка предназначена для фильтрации воды перед подачей ее в паровой котел или для подпитки водогрейных котлов в отопительных котельных. Обработка воды, поступающей из природного водоисточника, необходима для приведения её качества в соответствие с необходимыми требованиями для предотвращения образования на трубопроводах, теплообменниках, внутренних поверхностях водогрейных котлов минеральных отложений.

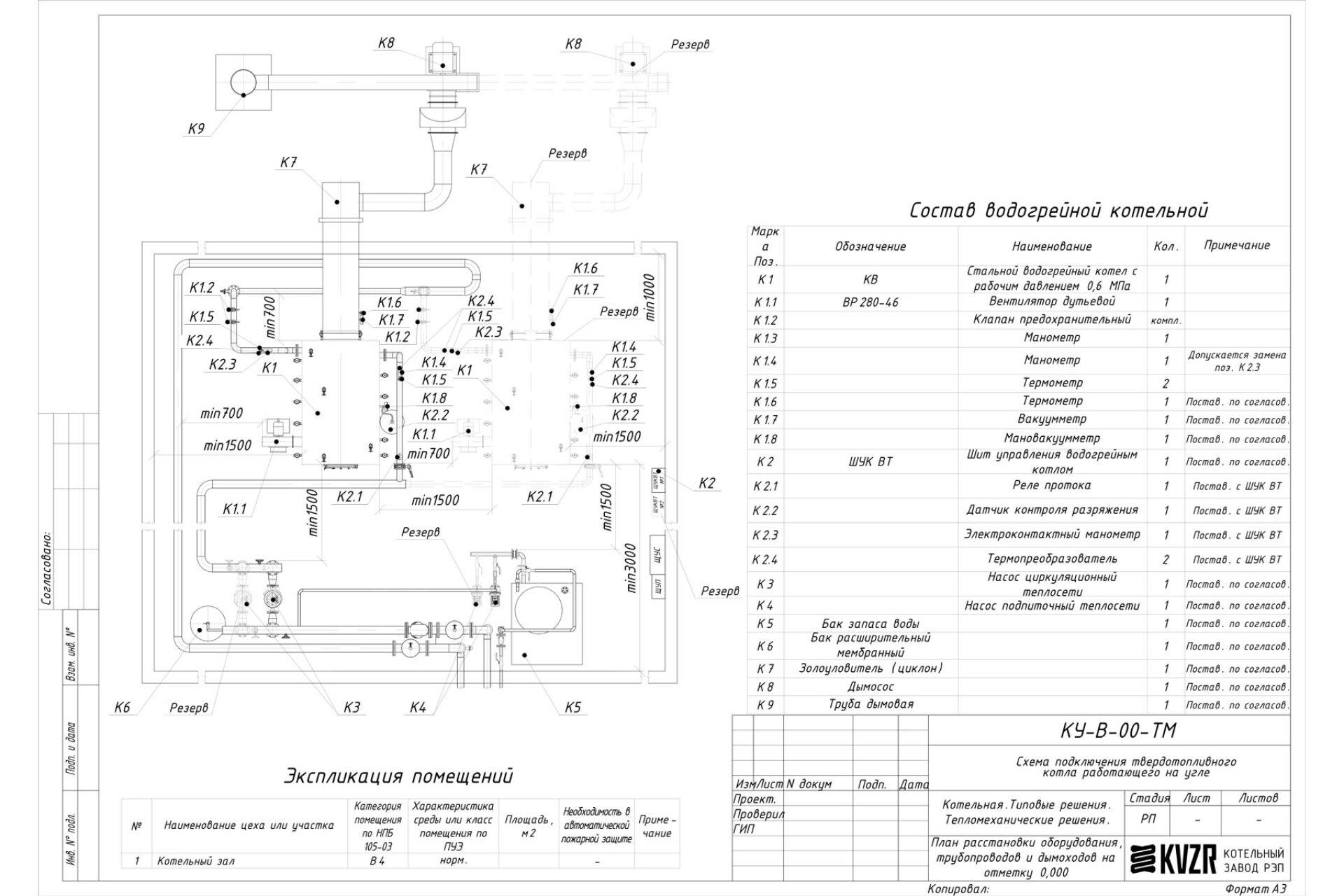
Установка котлов в котельной
План расстановки котельного оборудования, трубопроводов и дымоходов в котельной

Монтаж модульной котельной производится в следующей последовательности: на месте монтажа блоки собираются в единую конструкцию на фундаменте, производится стыковка внутренних трубопроводов, соединяются контрольно-измерительные приборы и автоматика между блоками, монтируется дымовая труба и к ней подсоединяется внешний газоход, подключается вода, канализация, электричество.

Монтаж котлов и котельных установок в котельной производится на специально подготовленную ровную поверхность, где он закрепляется анкерными болтами. Далее подсоединяется по воде, устанавливается запорная арматура на подводящем и отводящем трубопроводе, устанавливаются предохранительные клапаны, дренажи, воздушники и контрольно измерительные приборы. В воздушный короб по месту врезается вентилятор, монтируется газоход. 

Для того чтобы купить котлы и котельные установки в Грозном, можно оформить заявку в отделе сбыта по телефону 8-800-700-0643 или оформить заявку онлайн. Наши менеджеры дадут консультацию по подбору вспомогательного оборудования для выбранных вами моделей и рассчитают стоимость доставки к населенному пункту.